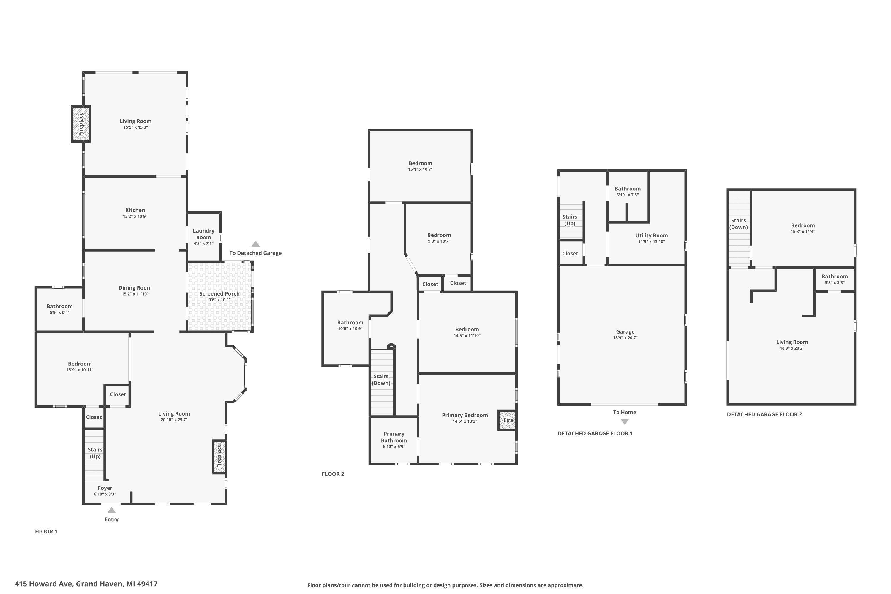
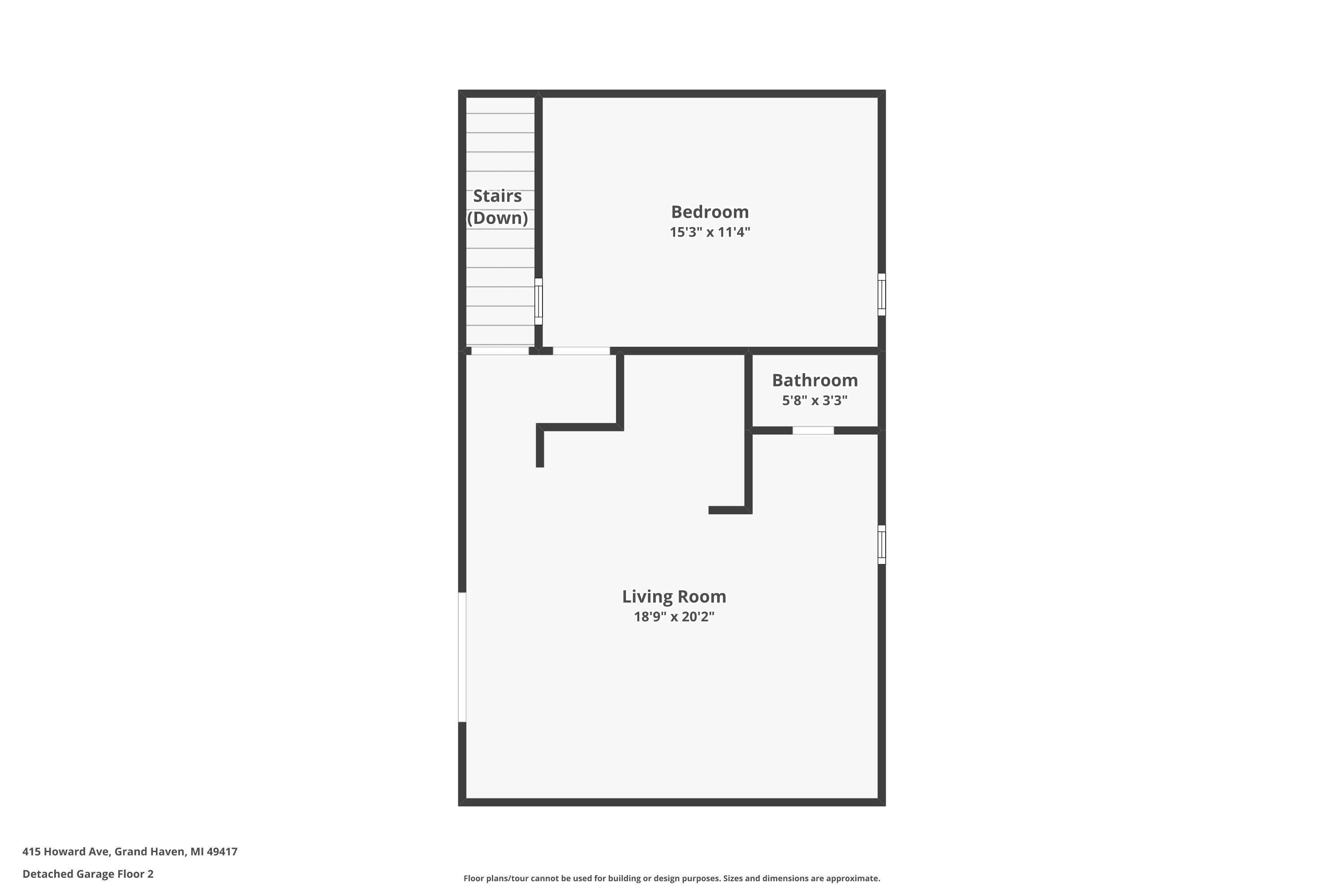
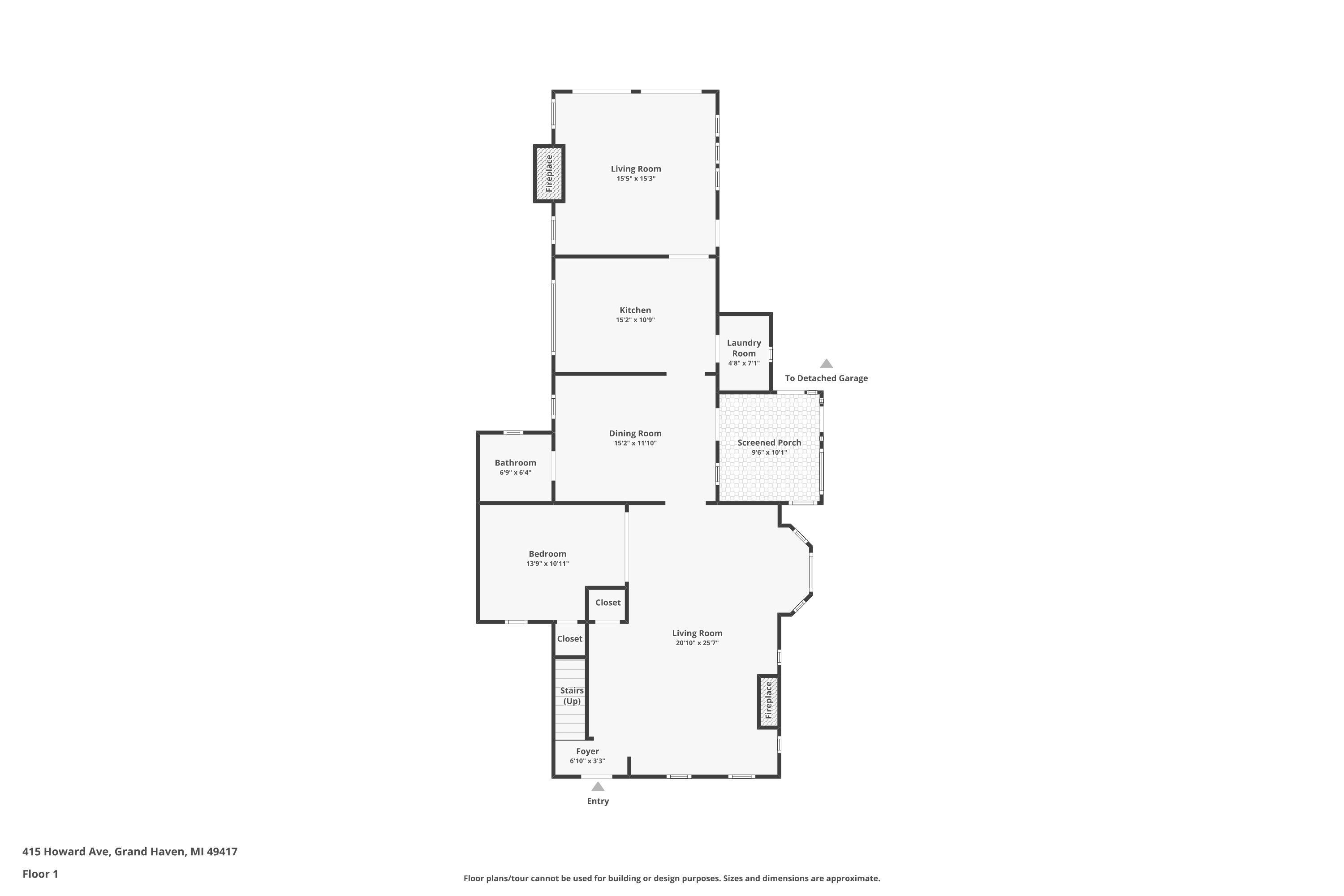
Incredible Location Just Blocks from the Waterfront and Downtown Grand Haven!This beautifully restored home, complete with a charming carriage house, is a rare offering where historic charm, rich textures, and meticulous craftsmanship come together in timeless elegance.Completely renovated in 2008, the main residence features 5 bedrooms and 3 bathrooms, blending modern updates with classic character-where every room tells a story.Step into grand proportions with tall ceilings in the living and family rooms, both adorned with cozy gas fireplaces and stunning woodwork. A perfectly appointed main-floor bedroom, located just off the living room, includes a full bath and flows seamlessly into the expansive dining room and kitchen. The centrally located main-floor laundry adds everyday convenience.You'll love the thoughtfully designed back family room overlooking the private, quaint backyard-ideal for quiet evenings or entertaining. Relax on your back deck or in the screened-in offering peaceful outdoor living. Upstairs, you'll find four additional bedrooms, including a luxurious primary suite with a gas fireplace, gorgeous bathroom, and walk-in closet. A third full bath completes the upper level. Just steps away, the Carriage House exudes charm with its original barn door and finished upper-level studio apartmentfeaturing a kitchenette, full bath, living room with a fourth fireplace, and bedroom. Perfect for guests, a home office, or a mother-in-law suite! This Heritage House with a Heart, located in the heart of downtown Grand Haven, is more than a homeit's an experience filled with soul, light, and timeless appeal. Don't waitthis is a rare gem that celebrates history and inspires generations.

Listing Tools

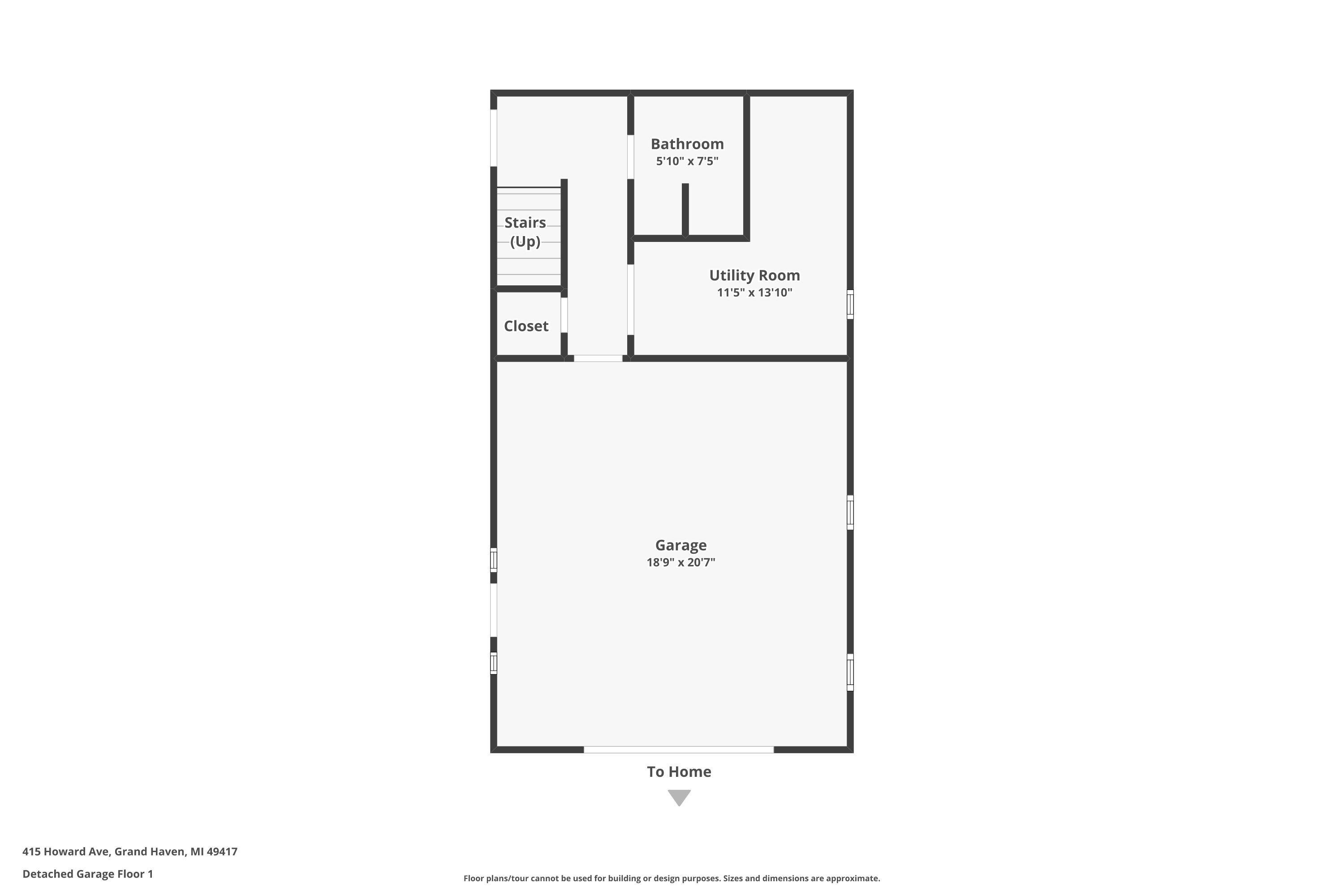
Property Details of 415 Howard Avenue

Property Details

Interior Features

Exterior Features

Utilities and Appliances

Community

Other Details

Map Location

Listed by Gina J Vis of HomeRealty,LLC

 "Based on information submitted to MichRIC as of November 12, 2025 9:09 PM EST . All data is deemed reliable but is not guaranteed accurate by the MLS. All information should be independently reviewed and verified for accuracy. IDX information is provided exclusively for consumers’ personal, noncommercial use and may not be used for any purpose other than to identify prospective properties consumers may be interested in purchasing."

Hi there! How can we help you?

Contact us using the form below or give us a call.

Send Us A Message:

I agree to receive marketing and customer service calls and text messages from Beacon Sotheby's International Realty. To opt out, you can reply 'stop' at any time or click the unsubscribe link in the emails. Consent is not a condition of purchase. Msg/data rates may apply. Msg frequency varies. Privacy Policy.

Do not fill in this field:

This site is protected by reCAPTCHA and the Google Privacy Policy and Terms of Service apply.

Hi there! How can we help you?

Contact us using the form below or give us a call.

Send Us A Message:

Do not fill in this field:

This site is protected by reCAPTCHA and the Google Privacy Policy and Terms of Service apply.

Hi there! How can we help you?

Contact us using the form below or give us a call.

Send Us A Message:

Do not fill in this field:

This site is protected by reCAPTCHA and the Google Privacy Policy and Terms of Service apply.

Do not fill in this field:

This site is protected by reCAPTCHA and the Google Privacy Policy and Terms of Service apply.

Do not fill in this field:

This site is protected by reCAPTCHA and the Google Privacy Policy and Terms of Service apply.

Do not fill in this field:

This site is protected by reCAPTCHA and the Google Privacy Policy and Terms of Service apply.

$

Do not fill in this field:

This site is protected by reCAPTCHA and the Google Privacy Policy and Terms of Service apply.